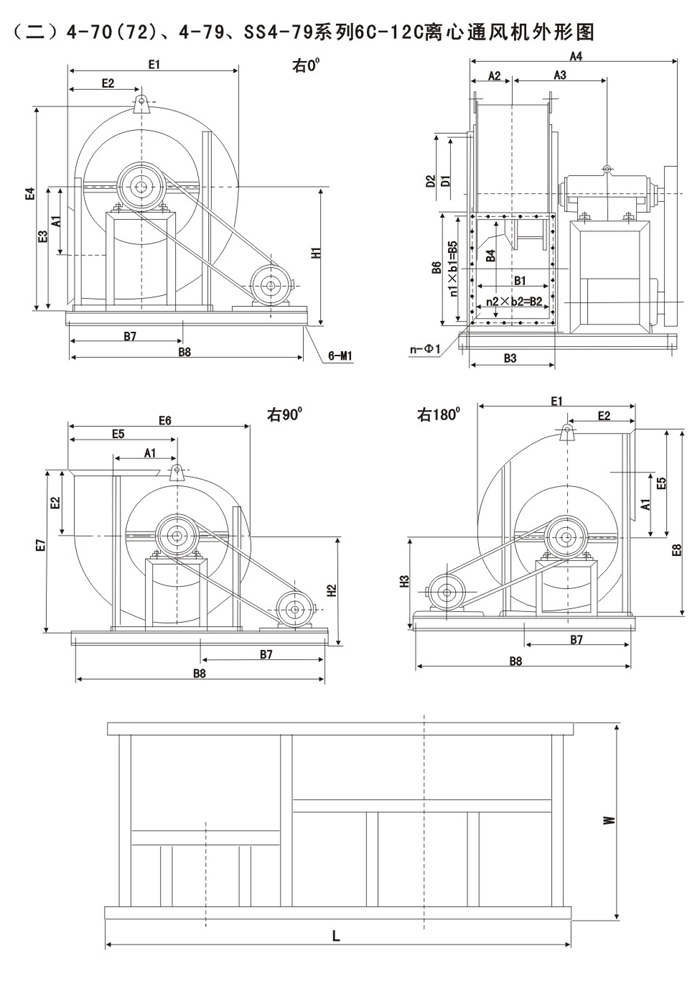
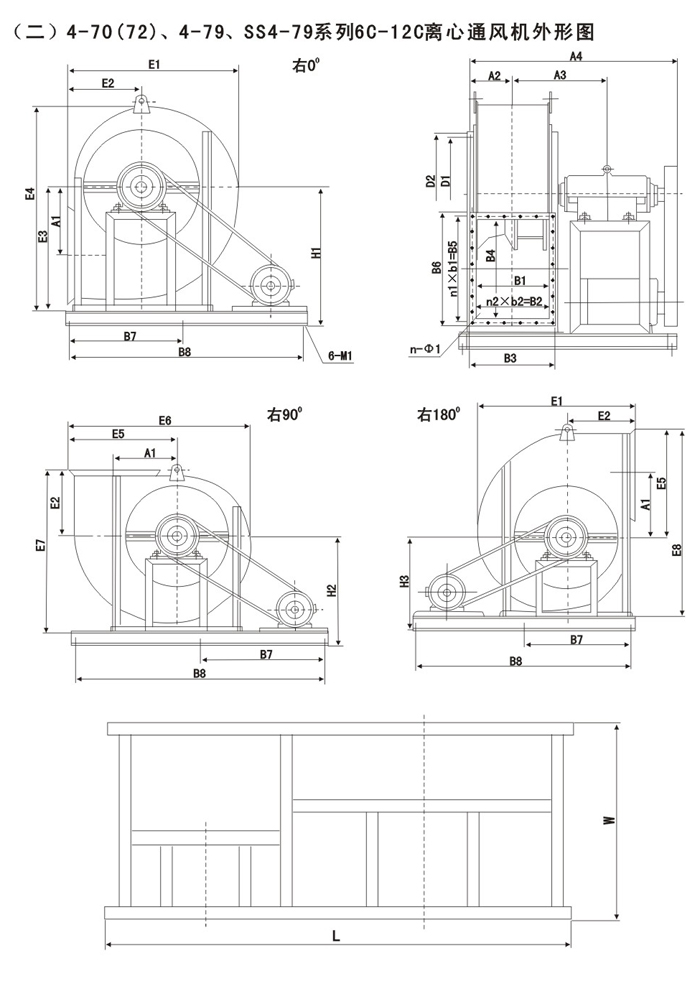
T4-72、4-79離心風機
4-72,4-79,SS4-79系列離心式通風機,其效率和比A聲級均達到或優于機械工業部制訂的A級標準。廣泛應用于各類大中型工廠和民用建筑,大型場館等場所。
SS4-79系列雙速噪聲離心式通風機,以4-79型離心式配變極多速三相民步電機構成,使風機在保留原型風機優特點的同時,又具有轉速可調,風量及風壓可在大范圍內變化,結構簡單,價格合理的優點,可以一機兩用,節省投資和運行費用。
4-72,4-79,SS4機-79系列離心風機作一般通風換氣用,輸送空氣或其它不易燃易爆,無腐蝕性的氣體,氣體內無粘性物質,所含的塵土及硬質顆粒物不大于150mg/m3,溫度不超過80攝氏度。
注:F4-72/79為防腐型離心風機,用于輸送有腐蝕性的氣體,用玻璃鋼為制作材料。
B4-72/79為防爆型離心風機,用于輸送易燃的易爆的氣體,電機配用隔爆電機,防爆要求較低的采用鐵制葉輪,防爆要求較高的使用鋁合金葉輪。
FB4-72/79為防腐防爆型離心風機,用于輸送有腐蝕性且易燃易爆的氣體。




















|
|